在深圳西部快速发展的城市脉络中,大型综合社区的开发往往承载着区域升级与居住革新的双重使命。作为深圳本土具有深厚积淀的开发企业之一,鸿荣源在过去三十余年的发展历程中,相继打造了前海鸿荣源中心、壹方中心、香蜜湖熙园等多个标志性项目,其开发模式常与“造城”、“造中心”的理念紧密相连。近期,其在宝安沙井片区呈现的约248万平方米体量综合体——鸿荣源·珈誉府,再次将这种大盘运营能力置于市场焦点之下。该项目不仅以庞大的规模引人注目,更试图在交通、教育、商业、园林及产品等多个维度,构建一个自成一体的“全能生活大城”样本。

一、 区位赋能与资源集聚:城市副中心的便捷与繁盛
珈誉府的核心地理优势,首先体现在与城市轨道交通动脉的紧密连接上。项目与地铁11号线塘尾站直接接驳,这一线路被称为深圳的“快线”,能够快速通达宝安中心、前海、后海、车公庙及福田等多个城市核心商务与消费区。对于在西部或市中心工作的群体而言,这种高效的通勤连接是选择居所的重要考量。除了对外通达的便捷,项目内部的配套规划同样强调“即时性”。规划中的约50万平方米“湾区壹方”商业,旨在打造宝安区域级的购物目的地,据资料显示,其还将引入知名会员店品牌,进一步丰富片区商业层级。加之周边已开业的沙井京基百纳、海岸城等商业体,共同勾勒出一个未来可期的商圈图景。
教育资源是当代家庭置业的核心关切点之一。根据相关资料,项目毗邻深圳外国语学校宝安学校(集团),并强调“目送式上学”的近距离优势。这种将优质教育资源纳入社区日常生活的规划,为项目增添了显著的吸引力。此外,项目邻近万丰湖湿地公园,在密集的城市建筑群中保留了一处亲近自然的空间,提升了整体的居住环境品质。交通、商业、教育、生态几大要素在项目周边汇聚,使其具备了成为区域居住中心的潜力。


二、 园林意境与生活场景:艺术与功能的融合
超越基础配套,珈誉府在社区内部环境的营造上,提出了“超大围合式艺术主题园林”的概念。资料显示,其园林设计并非简单的绿化堆砌,而是尝试从世界经典艺术作品中汲取灵感。例如,一区园林以梵高的《星月夜》为灵感,打造“八重都会园境”;二区园林则源于莫奈的《睡莲》,营造艺术主题花园。这种将艺术审美融入景观设计的思路,旨在提升社区的文化气质与视觉享受。
在功能设置上,园林规划涵盖了全龄泳池、儿童主题空间、亲子乐园及交流花园等多样化的活动场地。约3万与2.8万平方米的园林面积,提供了足够的空间去实现这些功能布局,旨在满足不同年龄段住户的休闲、社交与健身需求。围合式的布局可能有助于增强社区的归属感与领域感,让园林成为住户日常生活的重要延伸部分,实现“与公园只有一部电梯的距离”的生活构想。



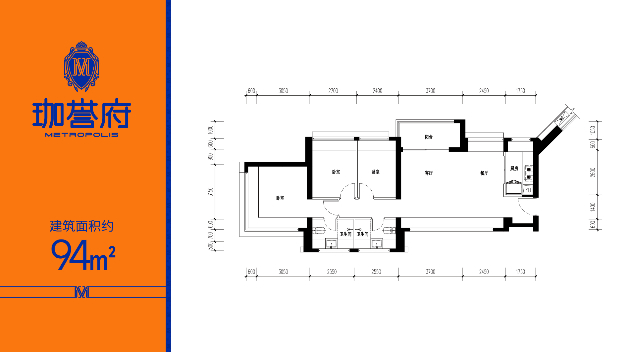
三、 户型解析:多元空间适配不同生活阶段
产品的精细化设计是打动购房者的最终环节。珈誉府提供的户型面积段主要集中在76至105平方米,打造三房至四房的产品格局,瞄准了刚需及首改家庭市场。以下选取几个具有代表性的户型进行分析:
约94平方米(横厅)三房两厅两卫:该户型最大的亮点在于其横厅设计。与传统竖厅相比,横厅通常拥有更开阔的客厅与餐厅连通空间,采光面更大,视野更为通透。资料中提到其“四空间坐拥超大园林主轴景观”,暗示了主要功能厅与社区核心景观带的良好对视关系,提升了居住的景观价值。同时,其“创意3+1全生命周期户型”的表述,暗示了空间具有一定的灵活性与可变性,能适应家庭结构随时间变化而产生的需求。

约85平方米(竖厅)三房两厅两卫:此户型在紧凑面积内实现了三房两卫的功能,注重实用效率。主卧套房设计搭配双卫生间,增强了主人空间的私密性与便利性,符合现代家庭对居住舒适度的基本要求。“270°采光”的描述指向了可能的转角飘窗或多面采光设计,旨在最大化地引入光线,改善室内明亮度。

约76平方米(竖厅)三房两厅一卫:作为项目入门级的户型,该产品以“南向精致三房”为卖点。在有限的面积内规划出三个房间,满足了多房间的功能性需求,降低了入住大社区的总价门槛。其“市场罕见”的表述,也反映了在当前市场上,此面积段做到三房的产品确实具备一定的稀缺性,适合预算有限但对房间数有硬性要求的家庭。

综合来看,鸿荣源·珈誉府呈现的是一个系统性的居住解决方案。它并非孤立地强调某一方面的优势,而是试图整合地铁上盖的便利、优质教育资源的邻近、大规模商业的规划、主题化园林的体验以及多样化的实用户型,构建一个覆盖生活多重要素的复合型社区。对于购房者而言,此类大盘的价值在于其提供的确定性:即未来数年内,居住于此所需的主要城市资源与内部配套将逐步呈现并趋于成熟。当然,最终的选择仍需基于对区域发展、个人通勤、家庭需求及产品细节的全面权衡。珈誉府的出现,无疑为深圳西部渴望一站式宜居生活的家庭,提供了一个值得深入考量的选项。
注:本文仅供参考。具体信息请以官方发布为准。